Accueil
Projets
Equipe
Contact
SITUATION AVANT TRAVAUX
Plus d'informations
Rénovation, extension d’une villa et aménagement paysager avec piscine/pool-house à Woluwé-Saint-Pierre, 2016.
Plan rez-de-chaussée
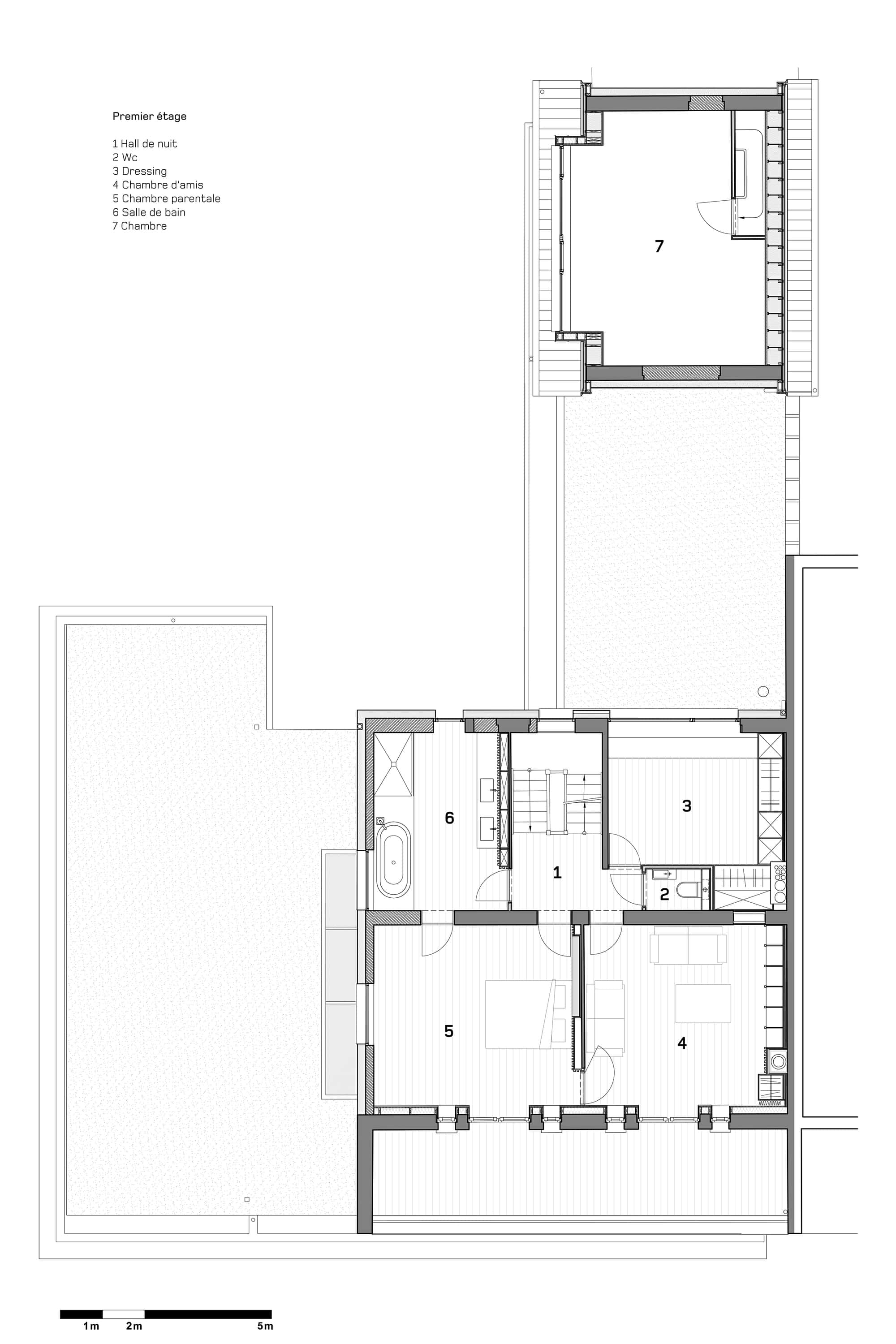
Plan niveau 1
Plan niveau 2
Plan d'implantation
Previous project
Next project